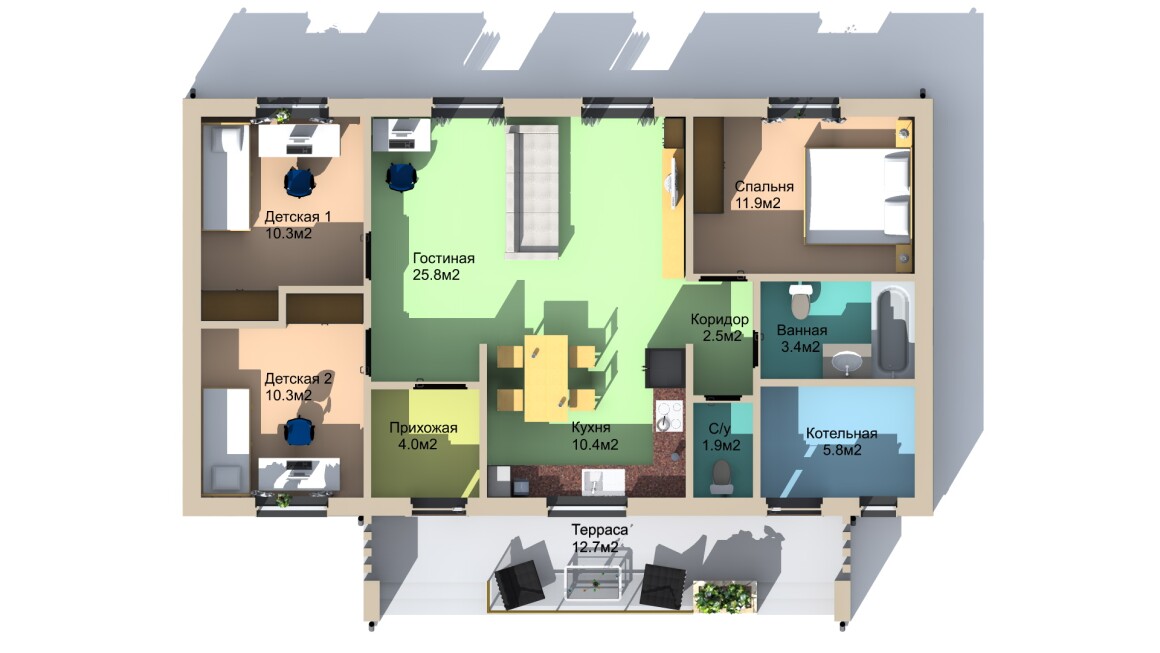
Проект 88-2

Общая площадь: 88 м²

Количество комнат: 4

Цена: 2 075 000 руб.

В комплект входит:

  1. Перекрытия заводского изготовления
  2. Панели стеновые заводского изготовления наружные высотой 2,7м
  3. Панели стеновые заводского изготовления внутренние высотой 2,7 м
  4. Кровля
  5. Фасад 
  6. Окна
  7. Дверь входная металлическая
  8. Монтаж

Примечание: Доставка домокомплекта, проведение коммуникаций, фундамент, инженерные сети в стоимость не входят.

Получить подробное предложение
Спасибо! Ваше сообщение получено